賃料:350,000円
敷金:3ヶ月
礼金:‐
共益費等:‐
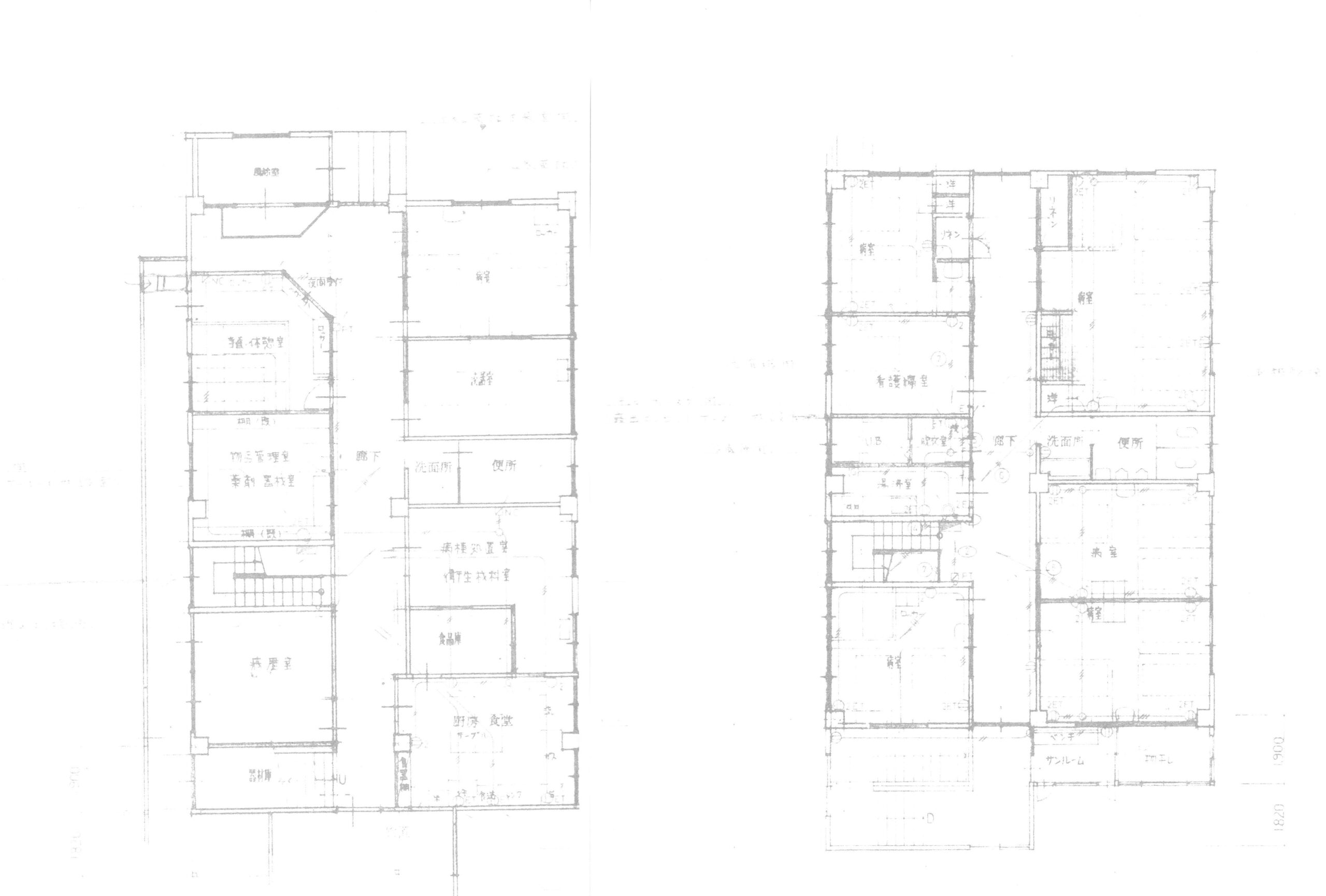
間取り:図面参照
築年:1967年12月
米沢市西大通 貸医院
物件番号J-1
米沢市西大通1丁目 地内
すこやかセンターバス停まで徒歩5分
賃料:350,000円
敷金:3ヶ月
礼金:‐
共益費等:‐
間取り:図面参照
築年:1967年12月
すこやかセンター近く、大通り沿いの角地に建つ旧医院です。 これまで胃腸科外科の医院として、長年にわたり地域の方々に親しまれてきました。 築年数は経過しておりますが、定期的に手を入れながら大切に使われてきた建物です。 2021年には外装、2024年には内装の改修工事を行っており、現状でも十分にご利用いただけます。 敷地内には広い駐車場を備え、消雪設備付きのため冬場の出入りも安心。 医院としての利用はもちろん、事務所や福祉・医療関連施設など、立地と建物の特性を活かした使い方をご検討いただけそうです。
間取り図
周辺マップ
所在地米沢市西大通1丁目 地内
交通すこやかセンターバス停まで徒歩5分
学区西部小 / 南成中
専有面積389.5m²
間取り図面参照
建物構造RC造
築年1967年12月
階数2階建
駐車場有
保険要
保証会社要
契約形態相談
取引形態媒介
入居日相談
築年1967年12月
階数2階建
駐車場有
保険要
保証会社要
契約形態相談
取引形態媒介
入居日相談
設備公営水道、公共下水道、トイレ(1F・2F)、洗面所、浴室、給湯室、エアコン、ロッカー、カルテ保管棚、消雪駐車場等
備考2007年 / 内外装改修工事済 2021年 / 外壁塗替、井戸ポンプ直し、駐車場舗装張替工事済 2024年 / 内装等改修工事済 ・レントゲン室有。 ・諸条件相談可能です。
注意事項・図面及び写真が現況と相違する場合は、現況優先とさせていただきます。 ・当サイトでは掲載情報に厳重なチェックを心がけていますが、万が一記載ミスが生じた場合は予めご容赦下さい。
注意事項・図面及び写真が現況と相違する場合は、現況優先とさせていただきます。 ・当サイトでは掲載情報に厳重なチェックを心がけていますが、万が一記載ミスが生じた場合は予めご容赦下さい。
情報更新日2026年03月25日
次回更新日2026年04月08日