売買物件
Buying and selling

物件名

米沢市成島町 売戸建
物件番号K-2

所在地・交通

米沢市成島町3丁目 地内
信夫町バス停まで徒歩8分

物件情報

価格:555万円

建物面積:192.81m² / 58.32坪

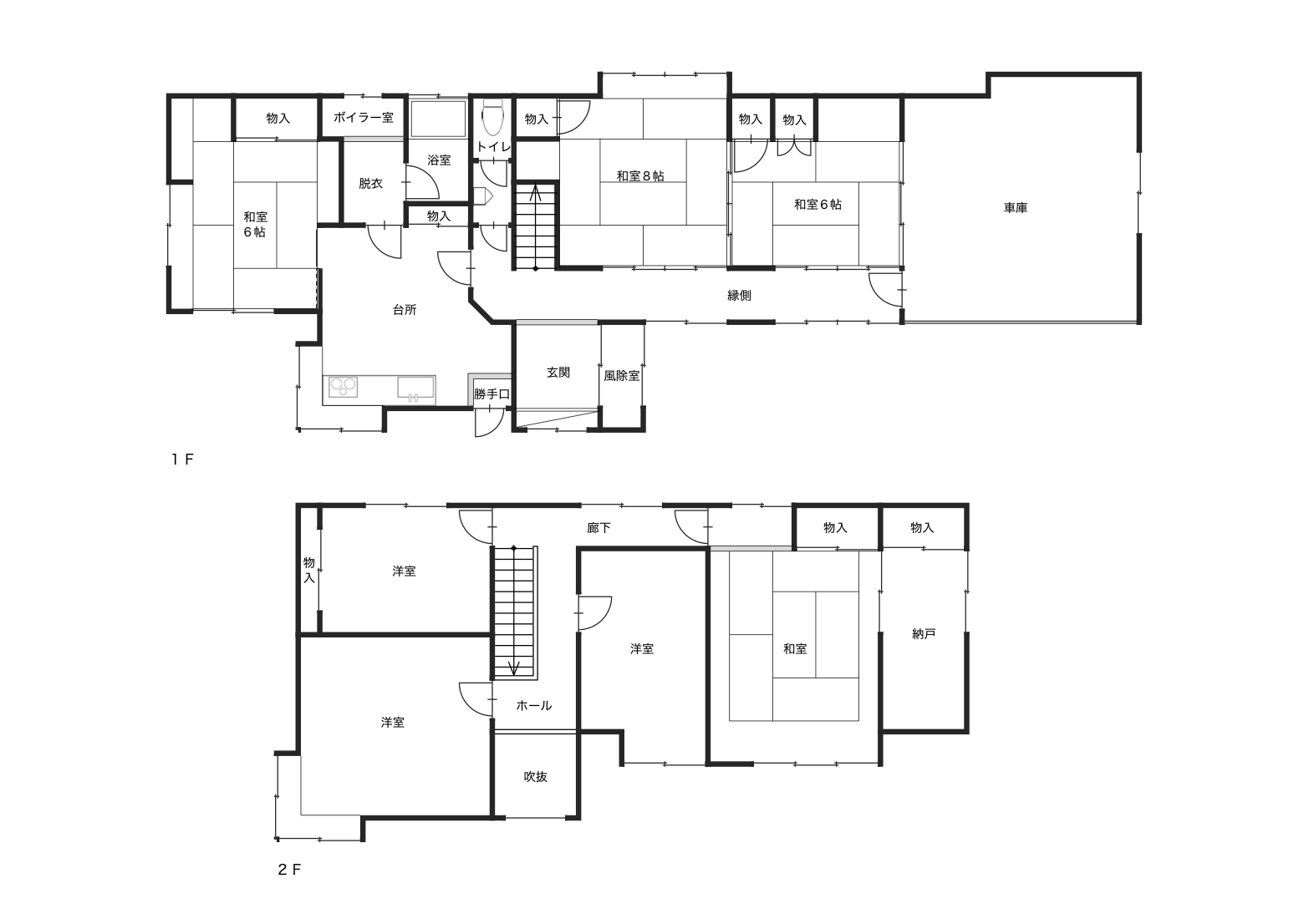
間取り:7DK

築年:1973年01月

成島町東部の落ち着いた住宅街に建つ、インナーガレージ付きの住宅です。 間取りは7DK。部屋数に余裕があるため、寝室のほかに書斎や趣味の部屋、来客用の和室など、暮らしに合わせた使い方が可能です。ご家族それぞれの時間を大切にしたい方や、多世帯での暮らしを検討されている方にもおすすめです。 2台が駐車できるガレージは電動シャッター付きで、雨や雪の日でも濡れることなく、そのまま建物内へ入ることができます。 敷地は96坪。南北に広い土地の南側には、道路からの視線を気にせず過ごせる、プライベート感のある広いお庭があります。季節の植物を育てたり、家族でくつろいだりと、屋外の時間も楽しめそうです。 ショッピング施設や飲食店が並ぶ国道121号線へのアクセスが良く、ヨークタウン米沢成島までは車で約3分。落ち着いた住環境と日々の利便性、そのどちらも満たしてくれる住まいです。

間取り図

周辺マップ

所在地・交通

所在地米沢市成島町3丁目 地内

交通信夫町バス停まで徒歩8分

学区西部小 / 第三中(南成中)

物件詳細

土地面積319.82m² / 96.72坪

建物面積192.81m² / 58.32坪

間取り7DK

建物構造木造2階建

築年1973年01月

駐車場4台(内ガレージ2台、縦列2台)

都市計画非線引区域

用途地域第一種住居地域

建ぺい率60%

容積率200%

接道北側 公道5.3m

現況空家

土地権利所有権

取引形態媒介

引渡時期媒介

駐車場4台(内ガレージ2台、縦列2台)

都市計画非線引区域

用途地域第一種住居地域

建ぺい率60%

容積率200%

接道北側 公道5.3m

現況空家

土地権利所有権

取引形態媒介

引渡時期媒介

設備公営水道、公共下水道、エアコン、インナーガレージ(2台分)、外物置等

備考・契約不適合責任免責 ・現況有姿引渡し(残置物は撤去) ・敷地内に小屋(物置)有

注意事項・図面及び写真が現況と相違する場合は、現況優先とさせていただきます。 ・当サイトでは掲載情報に厳重なチェックを心がけていますが、万が一記載ミスが生じた場合は予めご容赦下さい。

注意事項・図面及び写真が現況と相違する場合は、現況優先とさせていただきます。 ・当サイトでは掲載情報に厳重なチェックを心がけていますが、万が一記載ミスが生じた場合は予めご容赦下さい。

情報更新日2026年05月16日

次回更新日2026年05月30日

内見お申し込み・
お問い合わせはこちら
Application/Inquiry

Contact Form