売買物件
Buying and selling

物件名

米沢市徳町 売戸建(店舗付き)
物件番号K-15

所在地・交通

米沢市徳町 地内
信夫町バス停まで徒歩1分

物件情報

価格:1,900万円

建物面積:245.74㎡ / 74.33坪

間取り:3LDK+店舗

築年:1976年06月

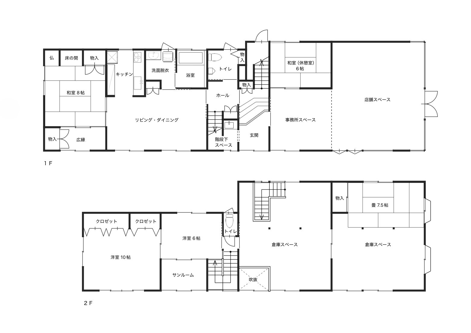
国道121号線から南に一本入った県道沿いに建つ、店舗付き住宅です 以前は電機屋さんとして地域の方々に長く親しまれてきました。 店舗部分は約14坪。店舗や事務所としての利用に丁度良い広さで、大通り沿いという立地もお店を開くには心強いポイント。 2階にある広い倉庫スペースは、そのまま活用するのはもちろん、改修して居室としてもお使いいだけます。 住宅部分は築20年ほど。非常に丁寧に使われており、現状のままでも十分にお住まいいただけるきれいな状態です。 床暖房・消雪設備・車庫等、寒冷地にうれしい設備も整っています。 自宅でお店を開きたい方にとっては理想的な一棟。 一方で、店舗部分を賃貸に出したり、改修してインナーガレージとするなど、住まいを主軸に柔軟な活用も可能ですので、住宅だけをご検討の方にもおすすめしたい物件です。

間取り図

周辺マップ

所在地・交通

所在地米沢市徳町 地内

交通信夫町バス停まで徒歩1分

学区北部小 / 第四中(北成中)

物件詳細

土地面積475.54㎡ / 143.85坪

建物面積245.74㎡ / 74.33坪

間取り3LDK+店舗

建物構造木造2階建

築年1976年06月

駐車場5~6台(内 車庫3台)

都市計画非線引区域

用途地域第一種住居地域

建ぺい率60%

容積率200%

接道東側 公道8m / 北側 私道3.5m

現況空き家

土地権利所有権

取引形態媒介

引渡時期相談

駐車場5~6台(内 車庫3台)

都市計画非線引区域

用途地域第一種住居地域

建ぺい率60%

容積率200%

接道東側 公道8m / 北側 私道3.5m

現況空き家

土地権利所有権

取引形態媒介

引渡時期相談

設備公営水道、公共下水道、プロパンガス、システムキッチン、IHコンロ、ユニットバス(1.25坪)、洗面化粧台、温水洗浄便座、照明器具、床暖房、ソーラーパネル、消雪設備、車庫等

備考・2005年 増築(住宅部分) ・契約不適合責任免責 ・現在、敷地の北側一部を道路として使用しています。 ・建替時、道路の中心線から2mの位置までセットバックが必要です。

注意事項・図面及び写真が現況と相違する場合は、現況優先とさせていただきます。 ・当サイトでは掲載情報に厳重なチェックを心がけていますが、万が一記載ミスが生じた場合は予めご容赦下さい。

注意事項・図面及び写真が現況と相違する場合は、現況優先とさせていただきます。 ・当サイトでは掲載情報に厳重なチェックを心がけていますが、万が一記載ミスが生じた場合は予めご容赦下さい。

情報更新日2026年02月18日

次回更新日2026年03月03日

内見お申し込み・
お問い合わせはこちら
Application/Inquiry

Contact Form