価格:150万円
建物面積:192.38㎡ / 58.19坪
間取り:8DK
築年:1969年06月
商談中
米沢市東大通 売戸建
物件番号K-16
米沢市東大通2丁目 地内
JR米沢駅まで2.1km
価格:150万円
建物面積:192.38㎡ / 58.19坪
間取り:8DK
築年:1969年06月
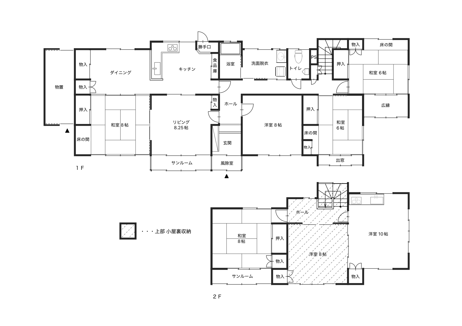
東大通の本通り沿い、日当たりの良い立地です。 築年数は重ねていますが、これまで大きな不具合はなく、細かい修繕を重ねながら所有者様の暮らしを支えてきた住まいです。 間取りは8DKと部屋数が豊富。2階にはキッチンを備えたセカンドリビングもあり、多世帯での暮らしにも対応できそうです。 各居室の収納に加え、建物付属の物置や小屋裏収納など大きな収納空間も備えており、日常使いのものから季節の品まで無理なく収められます。 建具や照明を含めたレトロな内装もこの住まいの魅力。新築住宅にはない趣があります。 敷地はゆとりある広さで2~3台の駐車が可能。前面道路には流雪溝もあります。 このまま住み継ぐのももちろん良いですが、建物や設備の築(設置)年数を踏まえると、ご予算やお好みに合わせてリフォームやリノベーションを施すことで、より長く愛着を持って暮らしていただける住まいになりそうです。 ※建物内残置物含め現況有姿での引き渡しとなります。 ※1992年6月に増築(1階 東側和室2間と2階)しております。
間取り図
周辺マップ
所在地米沢市東大通2丁目 地内
交通JR米沢駅まで2.1km
学区東部小 / 第一中
土地面積366.94㎡ / 111.00坪
建物面積192.38㎡ / 58.19坪
間取り8DK
建物構造木造
築年1969年06月
駐車場2~3台
都市計画非線引区域
用途地域第二種中高層住居専用地域
建ぺい率60%
容積率200%
接道東側 公道6.8m
現況空き家
土地権利所有権
取引形態媒介
引渡時期相談
駐車場2~3台
都市計画非線引区域
用途地域第二種中高層住居専用地域
建ぺい率60%
容積率200%
接道東側 公道6.8m
現況空き家
土地権利所有権
取引形態媒介
引渡時期相談
設備公営水道、公共下水道、洗面化粧台、温水洗浄便座、1・2階キッチン、電気温水器、エアコン4台、FF暖房5台、小屋裏収納、サンルーム、物置、シューズボックス、照明器具等
備考・契約不適合責任免責 ・現況有姿引渡し(残置物含) ・1992年6月増築 ・南側道路は私道(持分なし)です。
注意事項・図面及び写真が現況と相違する場合は、現況優先とさせていただきます。 ・当サイトでは掲載情報に厳重なチェックを心がけていますが、万が一記載ミスが生じた場合は予めご容赦下さい。
注意事項・図面及び写真が現況と相違する場合は、現況優先とさせていただきます。 ・当サイトでは掲載情報に厳重なチェックを心がけていますが、万が一記載ミスが生じた場合は予めご容赦下さい。
情報更新日2026年03月25日
次回更新日2026年04月08日