売買物件
Buying and selling

物件名

米沢市万世町桑山 売戸建
物件番号K-13

所在地・交通

米沢市万世町桑山 地内
金谷口バス停まで徒歩3分

物件情報

価格:3,780万円

建物面積:80.33㎡ / 24.3坪

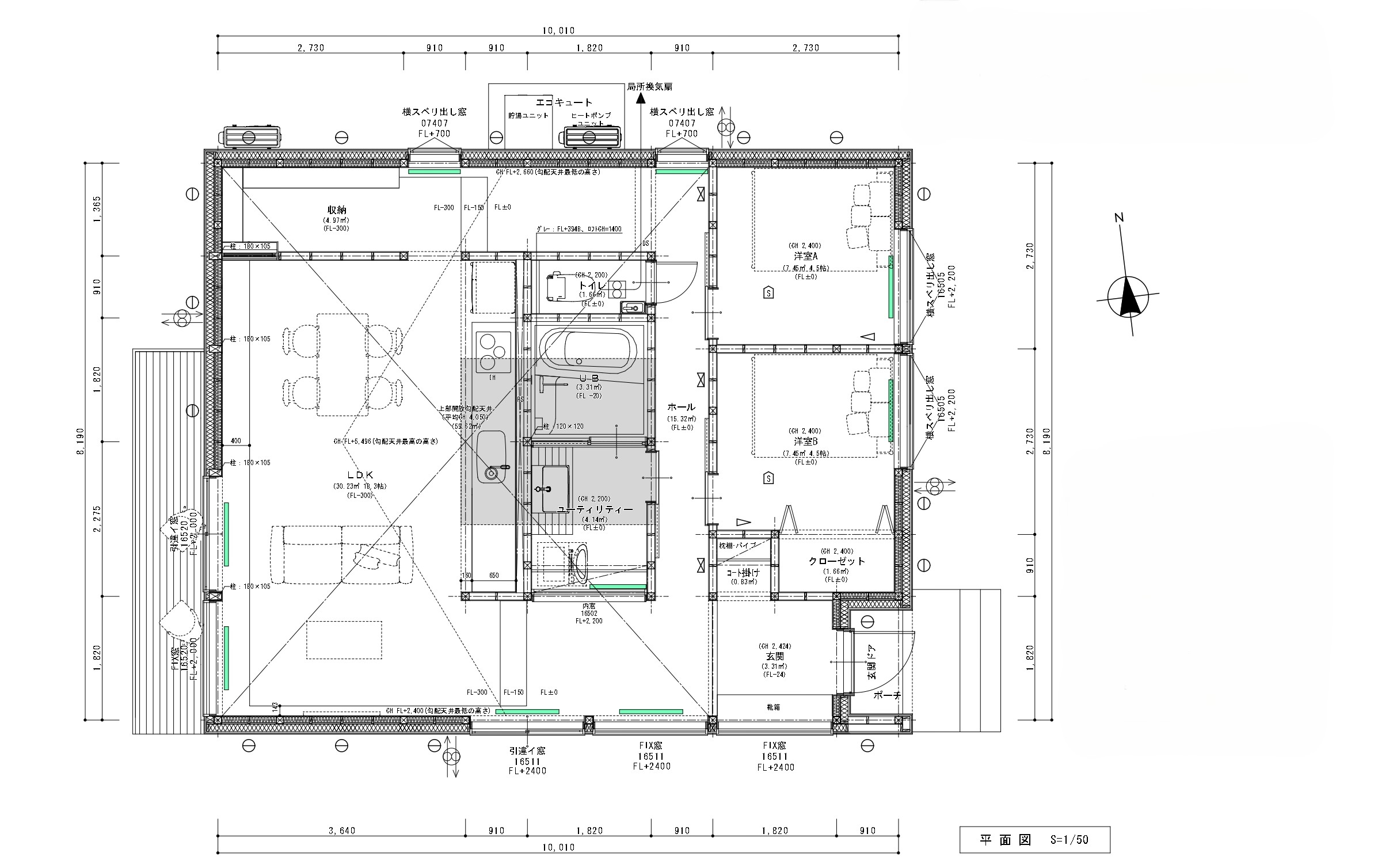
間取り:2LDK+ロフト

築年:2023年07月

万世町桑山地内、188坪のゆとりある敷地に建つ平屋住宅です。 少人数での暮らしにちょうどよく、敷地の広さと建物のサイズ感のバランスが心地よい住まいです。 建物には米沢杉を使用し、天然木ならではのやわらかなぬくもりと木の香りに包まれます。 米沢の厳しい寒暖差にも対応した高気密・高断熱仕様で、光熱費を抑えながら一年を通して快適にお過ごしいただけます。 家の中心に向かって伸びる勾配天井と、仕切りのない回遊動線が、空間全体をゆるやかにつなげ、光と風を通します。 西に開けた立地を活かし、リビング西面に設けた大きな窓からは、庭越しに田んぼと山の風景が広がり、季節の移ろいを身近に感じられます。 窓際には造作のベンチもあり、景色を眺めながらゆったりと過ごせる居心地の良いリビングです。 造作キッチンや床下エアコン、寒冷地仕様のフル暖エアコンなど、設備面も充実。 全室カーテン付きなのも、すぐに新しい暮らしを始められるうれしいポイントです。

間取り図

周辺マップ

所在地・交通

所在地米沢市万世町桑山 地内

交通金谷口バス停まで徒歩3分

学区万世小 / 第七中

物件詳細

土地面積622.25㎡ / 188.22坪

建物面積80.33㎡ / 24.3坪

間取り2LDK+ロフト

建物構造木造平屋建

築年2023年07月

駐車場

都市計画非線引区域

用途地域第二種中高層住居専用地域

建ぺい率60%

容積率200%

接道東側 公道5m

現況空家

土地権利所有権

取引形態媒介

引渡時期相談

駐車場

都市計画非線引区域

用途地域第二種中高層住居専用地域

建ぺい率60%

容積率200%

接道東側 公道5m

現況空家

土地権利所有権

取引形態媒介

引渡時期相談

設備造作キッチン、造作カップボード、IHコンロ、パントリー、ユニットバス、造作洗面化粧台、タンクレストイレ、フル暖エアコン、床下エアコン、エコキュート、トリプルガラス樹脂窓、全部屋カーテン付等

備考

注意事項・図面及び写真が現況と相違する場合は、現況優先とさせていただきます。 ・当サイトでは掲載情報に厳重なチェックを心がけていますが、万が一記載ミスが生じた場合は予めご容赦下さい。

注意事項・図面及び写真が現況と相違する場合は、現況優先とさせていただきます。 ・当サイトでは掲載情報に厳重なチェックを心がけていますが、万が一記載ミスが生じた場合は予めご容赦下さい。

情報更新日2026年05月16日

次回更新日2026年05月30日

物件資料をダウンロード

内見お申し込み・
お問い合わせはこちら
Application/Inquiry

Contact Form