売買物件
Buying and selling

物件名

米沢市西大通 売戸建
物件番号K-12

所在地・交通

米沢市西大通1丁目 地内
すこやかセンターバス停まで徒歩4分

物件情報

価格:2,830万円

建物面積:94.86㎡ / 28.69坪

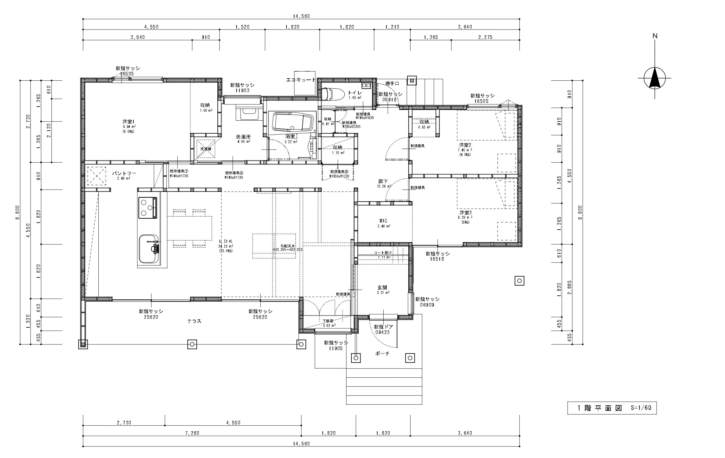
間取り:3LDK

築年:1985年11月

すこやかセンター北側の閑静な住宅街に建つ平屋住宅です。 こちらの物件は、長らく空き家(素敵なお家でした)となっていた建物を、内外装の改修・水回り設備の入替等だけでなく、間取りの見直し・変更から断熱・耐震改修まで大規模にリノベーション。もともとの建物が持つ良さを活かしつつ、いまのライフスタイルに合った住まいへと生まれ変わりました。 モダンな外観とは対照的に、建物内は木のぬくもりを感じるあたたかみのあるデザイン。 玄関を入ると、勾配天井のリビングと二つの大きな窓が印象的な、明るく開放的なLDKが広がります。平屋ならではの伸びやかさを感じられる心地よい空間です。 居室を3室に増設しており、3~4人家族にも対応。お一人やお二人での暮らしであれば、趣味室やゲストルームとして余白を楽しむ使い方もできそうです。 目に見える部分だけでなく、断熱・耐震という性能部分もしっかりと改修されているため、長く安心・快適にお住まいいただけます。 132坪のゆとりある敷地には、車庫(立派な車庫です)を含め5~6台の駐車が可能。前面道路には消雪設備があり、冬場の出入りも安心です。

間取り図

周辺マップ

所在地・交通

所在地米沢市西大通1丁目 地内

交通すこやかセンターバス停まで徒歩4分

学区西部小 / 南成中

物件詳細

土地面積437.12㎡ / 132.22坪

建物面積94.86㎡ / 28.69坪

間取り3LDK

建物構造木造平屋建

築年1985年11月

駐車場5台(車庫2台、敷地3台)

都市計画非線引区域

用途地域第一種住居地域

建ぺい率60%

容積率200%

接道南側 私道(消雪付)6m

現況空家

土地権利所有権

取引形態媒介

引渡時期相談

駐車場5台(車庫2台、敷地3台)

都市計画非線引区域

用途地域第一種住居地域

建ぺい率60%

容積率200%

接道南側 私道(消雪付)6m

現況空家

土地権利所有権

取引形態媒介

引渡時期相談

設備システムキッチン、IHコンロ、食洗器、造作カップボード、パントリー、ユニットバス、シャワー付洗面化粧台、タンクレストイレ、造作扉、LED照明、フル暖エアコン、エコキュート、テレビドアホン、木製テラス、車庫(2台分)等

備考2025年8月リノベーション完了

注意事項・図面及び写真が現況と相違する場合は、現況優先とさせていただきます。 ・当サイトでは掲載情報に厳重なチェックを心がけていますが、万が一記載ミスが生じた場合は予めご容赦下さい。

注意事項・図面及び写真が現況と相違する場合は、現況優先とさせていただきます。 ・当サイトでは掲載情報に厳重なチェックを心がけていますが、万が一記載ミスが生じた場合は予めご容赦下さい。

情報更新日2026年03月25日

次回更新日2026年04月08日

物件資料をダウンロード

内見お申し込み・
お問い合わせはこちら
Application/Inquiry

Contact Form